小程序

微信小程序

微信小程序

新房

宝德·璞悦湾

9.1 / 10分
期房在售 住宅 改善好房
扫码拨号

宝德·璞悦湾 价值分析报告

项目概述

宝德·璞悦湾位于临沂北城新区,由临沂宝德建设发展有限公司精心打造,项目当前价格为18000元/㎡。楼盘网AI数据库根据项目户型、交通配套、教育配套、生活配套、小区规划等方面进行分析,宝德·璞悦湾综合评分为9.1分,具体情况如下,有任何疑问,欢迎咨询专业置业顾问。

项目户型 8.0

宝德·璞悦湾共有6个户型,当前有6个户型在售,166.71㎡的4室、175.31㎡的4室、171.26㎡的4室、147.61㎡的4室、156㎡的4室、232.95㎡的5室。具体户型情况如下

户型图更多户型> >

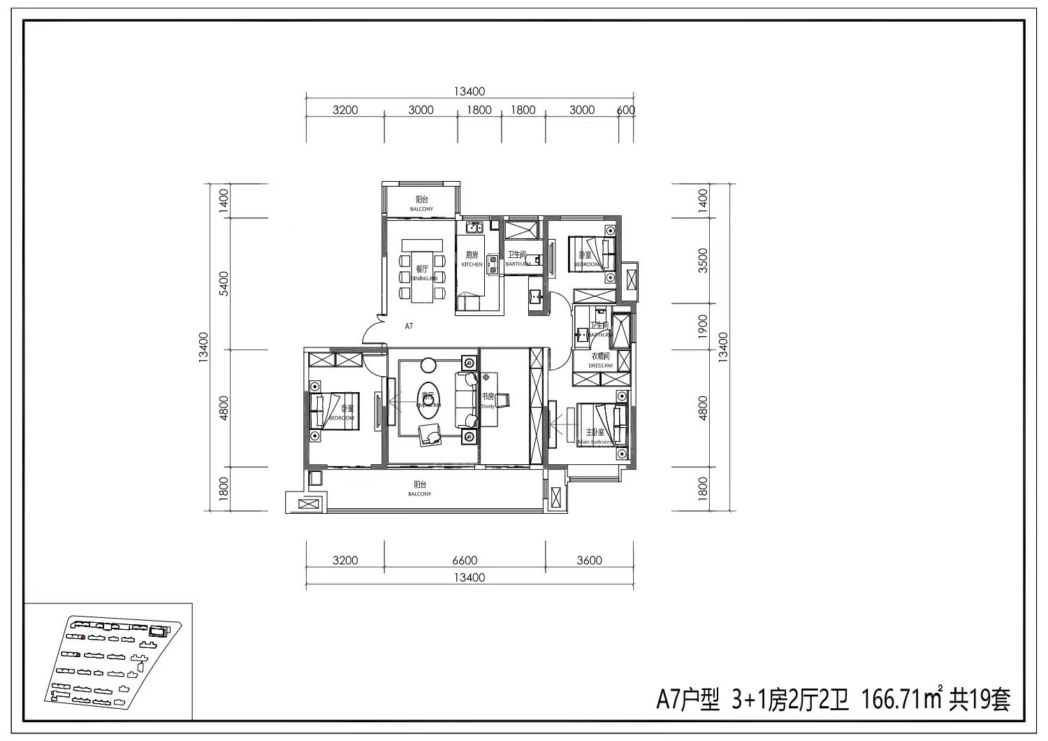
  • 4室2厅2卫 在售
    建面: 166.71㎡
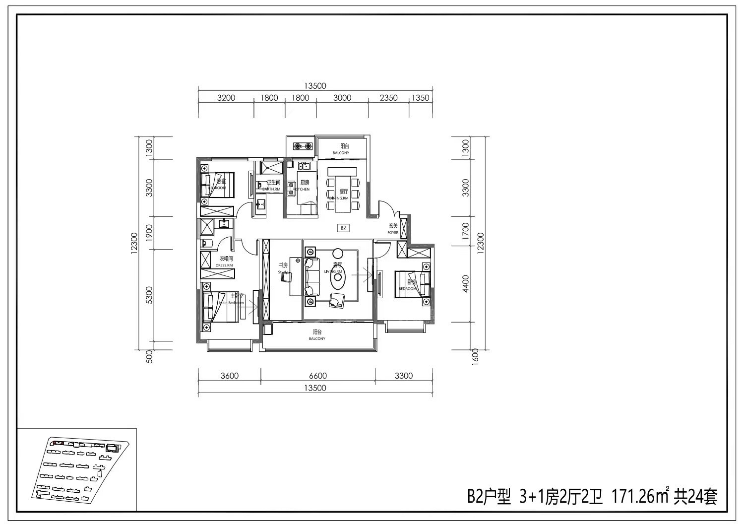
  • 4室2厅2卫 在售
    建面: 175.31㎡
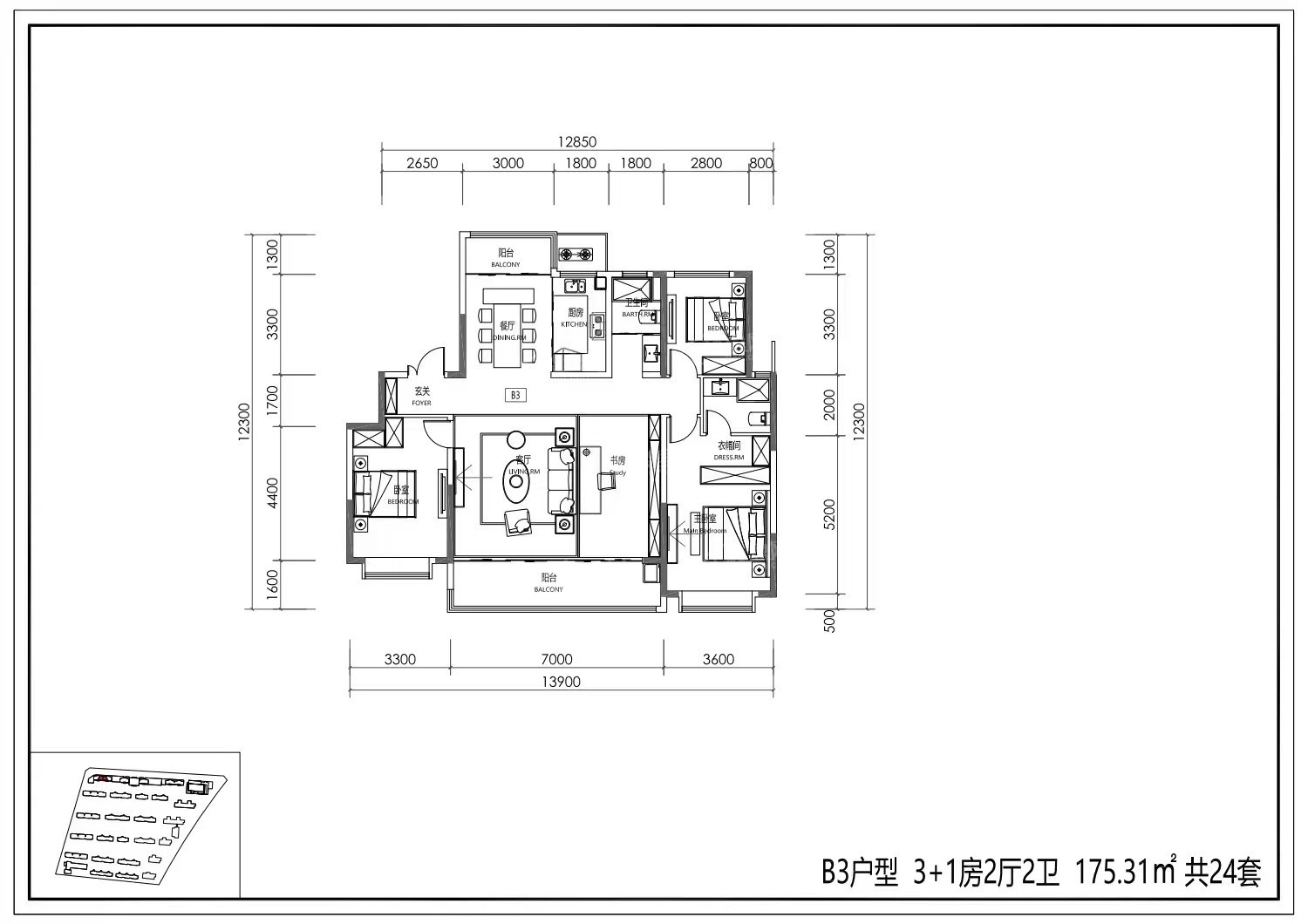
  • 4室2厅2卫 在售
    建面: 171.26㎡

交通配套 8.4

楼盘附近1公里内有10个公交车站,5条公交线路经过。其中平谷四中距离楼盘直线仅57米,出行十分便利。

查看详细交通配套情况
地铁站数量 0
公交站数量 10

教育配套 9.8

项目周边2公里范围内有幼儿园12所,如:哆来咪幼儿园、北京市平谷区维德幼儿园、安特思库潜能开发第二幼儿园、纸飞机幼儿园、北京市平谷区小树人幼儿园;其中最近的哆来咪幼儿园距离楼盘直线仅385米。

项目直径2公里范围内有小学8所,如:平谷区第五小学、北京市平谷区第七小学、平谷区第一小学(南校区)、北京市平谷区大兴庄中心小学、周村小学;其中最近的平谷区第五小学距离楼盘直线仅950米。

项目周边3公里有中学5所,其中最近的北京市第十四中学平谷分校距离楼盘直线仅191米。

查看详细教育配套情况
幼儿园数量 12
小学数量 8
中学数量 5

免责声明:
注:上述学校为楼盘位置周边学校,相关信息仅供参考,不作为入学依据,具体政策可咨询专业置业顾问。

剩余2页未读,继续阅读

宝德·璞悦湾 在售

参考起价: 18000 元/㎡ 查看更多楼盘信息>>

9.1 楼盘网AI数据库通过 5 个维度(采用 10分制)对项目进行专业评分,力求展示对项目的客观评价。 1、项目户型:在售户型数量、居室分布情况,在售户型采光、通透性、公摊面积等综合评分。 2、交通配套:满分10分,对于1 公里内的公交、轨道交通数量及远近情况进行评分。 3、教育配套:满分10分,对于 1到3公里内幼儿园、小学、中学等数量及远近情况进行评分。 4、生活配套:满分10分,根据周边3公里购物、医疗、公共设施等数量进行评分。 5、小区规划:满分10分,小区绿化率、容积率、车位情况等进行评分。

项目户型 8.0

交通配套 8.4

教育配套 9.8

生活配套 9.5

小区规划 9.8

加购房群
免责声明:本站旨在为广大用户提供更多信息服务,不声明或保证所提供信息的准确性和完整性。页面所载内容及数据仅供用户参考和借鉴,最终以开发商实际公示和以政府部门登记备案为准,用户因参照本站信息进行相关交易所造成的任何后果与本站无关。如楼盘信息有误,您可以投诉或拨打举报电话::4008180066 转 017942
楼盘网产品使用意见反馈
创建时间:2026-03-06
感谢您对楼盘网的支持与关注,请将您遇到的问题或者建议反馈给我们,我们虚心接受您最诚挚的意见和建议。

反馈内容*

联系方式*