小程序

微信小程序

微信小程序

新房

泰鑫玺园

9.5 / 10分
期房在售 洋房 普通住宅 住宅 小户型 改善好房
扫码拨号

泰鑫玺园 价值分析报告

项目概述

泰鑫玺园位于临沂河东区,由临沂衡鑫置业有限公司精心打造,项目当前价格为10000元/㎡。楼盘网AI数据库根据项目户型、交通配套、教育配套、生活配套、小区规划等方面进行分析,泰鑫玺园综合评分为9.5分,具体情况如下,有任何疑问,欢迎咨询专业置业顾问。

项目户型 9.2

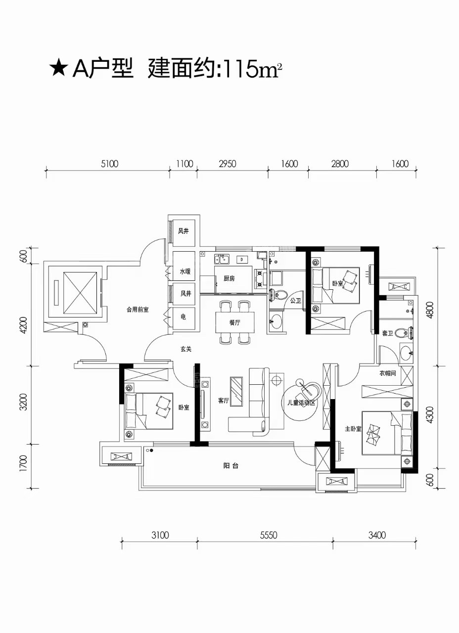
泰鑫玺园共有6个户型,当前有6个户型在售,115㎡的3室、138㎡的3室、106㎡的3室、125㎡的3室、130㎡的3室、67㎡的1室。其中115㎡的3室的A户型户型特别受欢迎。该户型南北通透,全明格局,实用率高深受购房者的喜欢。具体户型情况如下

户型图更多户型> >

  • 3室2厅2卫 在售
    建面: 115㎡
  • 3室2厅2卫 在售
    建面: 138㎡
  • 3室2厅2卫 在售
    建面: 106㎡

交通配套 9.5

楼盘附近1公里内有10个公交车站,20条公交线路经过。其中红太阳家具市场距离楼盘直线仅93米,出行十分便利。

查看详细交通配套情况
地铁站数量 0
公交站数量 10

教育配套 9.7

项目周边2公里范围内有幼儿园20所,如:明星宝贝幼儿园、博文潜能开发幼儿园、羊可羊幼儿园、北京红缨清华育子幼儿园(清华育子园)、桃花涧幼儿园(河东园);其中最近的明星宝贝幼儿园距离楼盘直线仅292米。

项目直径2公里范围内有小学6所,如:临沂市幸福小学、临沂市河东区九曲街道星河小学、临沂沭埠岭小学、临沂幸福小学(机场校区)、临沂第九实验小学;其中最近的临沂市幸福小学距离楼盘直线仅652米。

项目周边3公里有中学5所,其中最近的临沂沂蒙职业中等专业学校距离楼盘直线仅360米。

查看详细教育配套情况
幼儿园数量 20
小学数量 6
中学数量 5

免责声明:
注:上述学校为楼盘位置周边学校,相关信息仅供参考,不作为入学依据,具体政策可咨询专业置业顾问。

剩余2页未读,继续阅读

泰鑫玺园 在售

参考均价: 10000 元/㎡ 查看更多楼盘信息>>

9.5 楼盘网AI数据库通过 5 个维度(采用 10分制)对项目进行专业评分,力求展示对项目的客观评价。 1、项目户型:在售户型数量、居室分布情况,在售户型采光、通透性、公摊面积等综合评分。 2、交通配套:满分10分,对于1 公里内的公交、轨道交通数量及远近情况进行评分。 3、教育配套:满分10分,对于 1到3公里内幼儿园、小学、中学等数量及远近情况进行评分。 4、生活配套:满分10分,根据周边3公里购物、医疗、公共设施等数量进行评分。 5、小区规划:满分10分,小区绿化率、容积率、车位情况等进行评分。

项目户型 9.2

交通配套 9.5

教育配套 9.7

生活配套 9.6

小区规划 9.6

加购房群
免责声明:本站旨在为广大用户提供更多信息服务,不声明或保证所提供信息的准确性和完整性。页面所载内容及数据仅供用户参考和借鉴,最终以开发商实际公示和以政府部门登记备案为准,用户因参照本站信息进行相关交易所造成的任何后果与本站无关。如楼盘信息有误,您可以投诉或拨打举报电话::4008180066 转 017942
楼盘网产品使用意见反馈
创建时间:2026-03-06
感谢您对楼盘网的支持与关注,请将您遇到的问题或者建议反馈给我们,我们虚心接受您最诚挚的意见和建议。

反馈内容*

联系方式*